Ad Code

Responsive Advertisement

Narrow three level house Dwg File Download

 Narrow three level house Dwg File Download 

Planning a three-level house on a restricted parcel can be testing, yet with cautious preparation and inventiveness, you can capitalize on the accessible space. Underneath, I'll frame the vital contemplations and plan standards to remember for such a venture:

Narrow three level house Dwg File Download


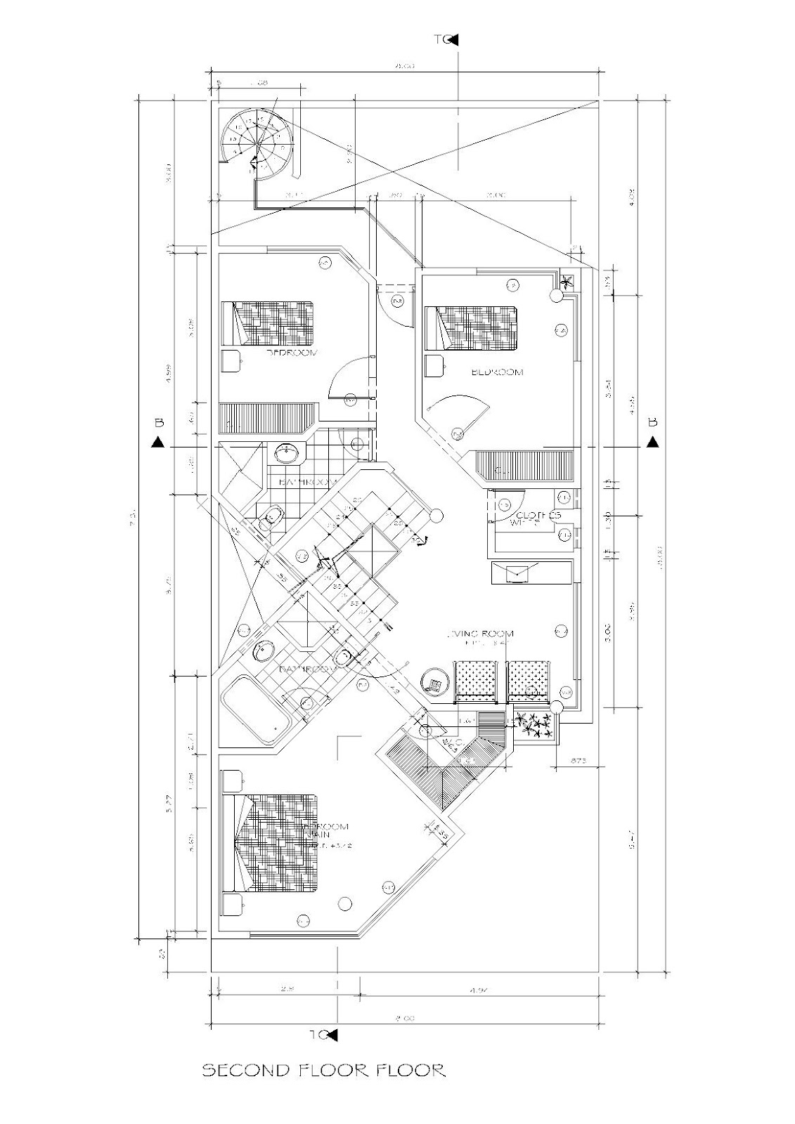
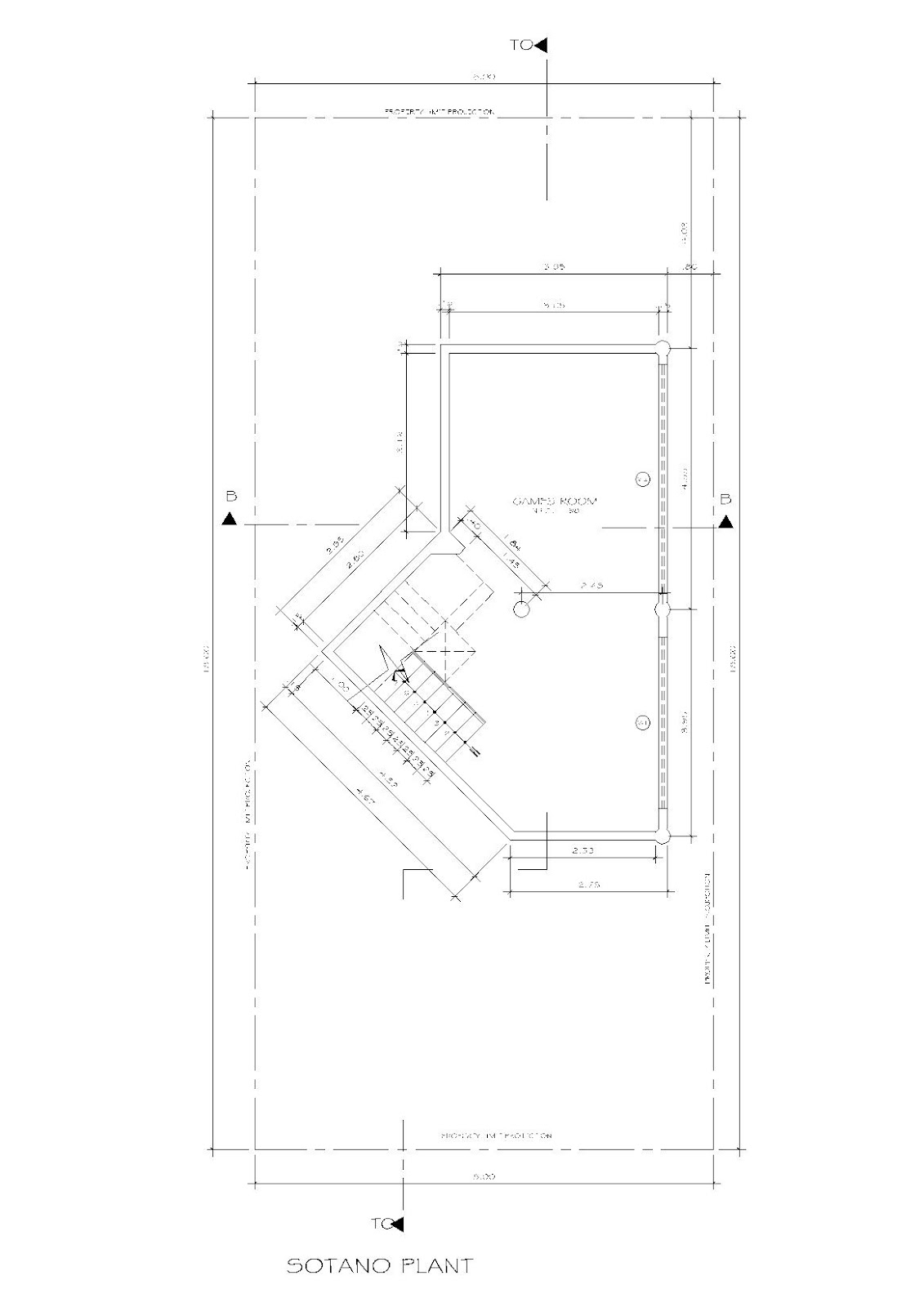
  1. Maximize Vertical Space:


  2. Since the parcel is tight, capitalize on the upward space accessible. Consider making high roofs and open floor intends to give the deception of more space and to permit regular light to infiltrate further into the house.

  3. Efficient Floor Plan:

  4. Narrow three level house Dwg File Download

  5. Upgrade the floor plan design to guarantee proficient utilization of room. Stack rooms that require plumbing (like washrooms and kitchens) over one another to limit plumbing runs. This additionally assists with keeping the utility associations more clear.

  6. Functional Zoning:

  7. Narrow three level house Dwg File Download

  8. Obviously characterize the various region of the house. Ordinarily, the ground floor could be saved for normal spaces like the parlor, eating region, and kitchen. The upper levels might contain rooms, restrooms, and a review or diversion region.

  9. Staircase Placement:

  10. Narrow three level house Dwg File Download

  11. Select the area of the flight of stairs cautiously to limit its impression while keeping up with simple access between levels. A twisting flight of stairs or a midway found flight of stairs can be great choices for thin houses.

  12. Lighting and Ventilation:

  13. Narrow three level house Dwg File Download

  14. Satisfactory lighting and ventilation are vital in any house plan. Consider adding huge windows, lookout windows, or lightwells to get normal light and natural air.

  15. Outdoor Spaces:

  16. Narrow three level house Dwg File Download

  17. If conceivable, make outside spaces like overhangs or housetop gardens. These regions can act as expansions of the living space and give a feeling of receptiveness.

  18. Storage Solutions:

  19. Narrow three level house Dwg File Download

  20. With restricted floor space, it is fundamental for integrate brilliant capacity arrangements. Use under-step capacity, worked in cupboards, and multi-practical furniture to boost capacity limit without jumbling the living regions.

  21. Privacy Concerns:

  22. Narrow three level house Dwg File Download

  23. Since the house is restricted, protection could be a worry, particularly in the event that adjoining properties are in nearness. Consolidate plan components like off-white glass, louvers, or decisively positioned arranging to keep up with security.

  24. Materials and Finishes:

  25. Narrow three level house Dwg File Download

  26. Pick materials and completions that supplement the general plan and add to the feeling of room. Light-hued walls, mirrors, and intelligent surfaces can make a deception of more space.

  27. Sustainability:

  28. Narrow three level house Dwg File Download

  29. Consider consolidating eco-accommodating highlights like energy-proficient machines, appropriate protection, and water collecting frameworks to decrease the house's natural effect. Recollect that each building site is extraordinary, and it's vital for work with a draftsman or an expert creator who can fit the plan to your particular parcel and prerequisites. While I can't give a particular DWG record to download, you can look through web-based engineering stages, libraries, or team up with a modeler who can make a hand craft in light of your inclinations and the website's requirements.



Post a Comment

0 Comments

Close Menu